MAC北戸田コート 3階
JR埼京線《北戸田》駅より徒歩7分、さいたま市南区辻8丁目【MAC北戸田コート】3階の売却情報。さいたま市立辻南小学校・南浦和中学校の学区内となります。区画整理事業にて日々発展が進んでいく北戸田駅、周囲には保育園や公園等も多く子育て世帯には嬉しい住環境。共用部は令和5年にエレベーターリニューアル、安心の新耐震基準。さいたま市南区でマンションを購入・売却をするなら《さいたま不動産》へご相談下さい。
ローンシミュレーションこの物件を購入した場合の、月々の支払い価格の一例です。借り入れを保証するものではございません。
- 返済期間
-
- 金利
-
- ボーナス時の増額(1回分)
-
- 借入金額:
-
- 頭金:
-

- 毎月の返済額:
(※元利均等方式 金利5.00%まで ※返済年数5~50年まで入力できます)
(※ボーナスは年2回で計算しています。1000万円まで入力できます)
(※物件購入時、その他諸費用が発生する場合がございます)
担当者のコメント 吉田巴

- 独立キッチンで広々16帖のLDKへと新規内装リノベーション済みです。シングルやディンクスにも最適なコンパクト、かつ好立地の物件となります。食洗機や浴室乾燥機など最新設備を兼ね備えた当社オススメ!現在空室につき当日のお電話でも随時内見対応可能でございます。
ポイント・特徴
物件概要
【中古マンション】 物件番号:100539843 情報更新日:2026年04月13日 次回更新予定日:2026年04月27日| 所在地 | 埼玉県さいたま市南区辻8丁目6-5 | ||
|---|---|---|---|
| 交通 | |||
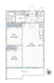
| 間取り/詳細 |
2LDK LDK 16.0帖 1室/洋室 5.0帖 1室/洋室 4.5帖 1室 |
||
| 専有面積/バルコニー面積 | 57.96㎡/9.18㎡ | ルーフバルコニー面積/テラス面積/専用庭面積 | -/-/- |
| 価格 | 2,899万円 | ||
| 管理費 | 11,650円 | ||
| 修繕積立金 | 17,390円 | 修繕積立基金 | - |
| 権利金 | - | 駐車場/月額料金 | 空無/15,000円 (税込) |
| 土地の敷金/保証金 | -/- | 借地料/借地期間 | -/- |
| 土地権利 | 所有権 | 国土法届出要否 | 不要 |
| 用途地域 | 準工業 | 地勢 | 平坦 |
| 種別/構造 | 中古マンション/鉄筋コンクリート | 向き | 南西 |
| 築年月(築年数) | 1991年 8月 (築34年) | ||
| 所在階/階建 | 3階/5階建 | 棟総戸数/販売戸数 | 30戸/1戸 |
| 管理組合有無 | 有 | 管理形態 | 管理会社に全部委託 |
| 管理員の勤務形態 | 日勤 | 管理会社 | 日本ハウズイング株式会社 |
| 取引態様 | 仲介 | 現況 | 空家 |
| 引渡し | 即時 | 建築確認番号 | - |
| 物件番号 | 100539843 | 取引条件の有効期限 | 2026年04月27日 |
| リフォーム |
2025年10月 キッチン 浴室 トイレ 壁 床 全室 |
||
| 設備条件 |
|
||
| 備考 |
さいたま市南区の不動産売却、購入は「さいたま不動産」へ! 南浦和駅より徒歩10分、さいたま市南区南浦和にある「さいたま不動産」は迅速・丁寧・アットホームをモットーにお客様のお悩みを全力解決を徹底しております。新築戸建・中古戸建・中古マンション・土地の購入や売却、相続等における空家や事故物件・再建築不可物件等の買い取りはもちろん、住宅ローンやリフォーム、火災保険や生命保険等の各種ご相談も喜んでお受け致します。 |
||
| 取扱会社 |
|
||
※地図上に表示される物件の位置は付近住所に所在することを表すものであり、実際の物件所在地とは異なる場合がございます。



























